Manchester Road, Chorlton Cum Hardy, M21 - Sold STC Guide Price £450,000 (Freehold)

8 1

Located on a high-footfall stretch of Chorlton’s vibrant high street, this substantial property is currently in a "run-down" state, priced to reflect the significant value that can be unlocked through a comprehensive refurbishment. The building’s versatile layout spans four levels, offering the scale required for a high-yield mixed-use conversion or a flagship commercial headquarters.

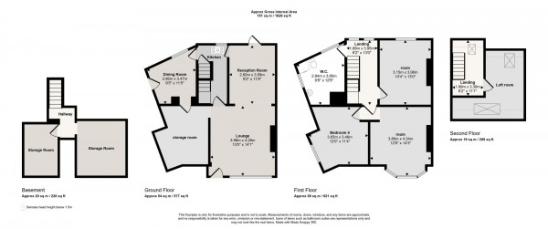
The ground floor is currently configured into three expansive shop floor areas, providing an impressive footprint that could accommodate a single large-scale retail unit or be subdivided into boutique outlets to maximize rental streams. Below, two cellar rooms offer essential dry storage or the potential for utility and plant room integration.

The upper floors provide significant scope for residential or professional development. The first floor consists of three well-proportioned rooms, while the converted loft space on the second floor offers further accommodation. This vertical space is ideal for conversion into high-end apartments or a large-scale HMO (subject to the necessary planning consents), tapping into Chorlton’s relentless demand for quality rental housing.

Situated just a short walk from the Metrolink and surrounded by the area's famous independent bars, delis, and eateries, this property represents a strategic acquisition in a location where capital appreciation remains consistently strong. For the investor looking to transform a neglected site into a premium high-street asset, 43 Manchester Road is a standout prospect.

Pattinson Auction are working in Partnership with the marketing agent on this online auction sale and are referred to below as 'The Auctioneer'. This auction lot is being sold either under conditional (Modern) or unconditional (Traditional) auction terms and overseen by the auctioneer in partnership with the marketing agent. The property is available to be viewed strictly by appointment only via the Marketing Agent or The Auctioneer. Bids can be made via the Marketing Agents or via The Auctioneers website. Please be aware that any enquiry, bid or viewing of the subject property will require your details being shared between both any marketing agent and The Auctioneer in order that all matters can be dealt with effectively. The property is being sold via a transparent online auction. In order to submit a bid upon any property being marketed by The Auctioneer, all bidders/buyers will be required to adhere to a verification of identity process in accordance with Anti Money Laundering procedures. Bids can be submitted at any time and from anywhere. Our verification process is in place to ensure that AML procedure are carried out in accordance with the law. The advertised price is commonly referred to as a ‘Starting Bid’ or ‘Guide Price’ and is accompanied by a ‘Reserve Price’. The ‘Reserve Price’ is confidential to the seller and the auctioneer and will typically be within a range above or below 10% of the ‘Guide Price’ / ‘Starting Bid’. These prices are subject to change. Positioned in the heart of one of South Manchester’s most sought-after postcodes, Manchester Road presents a rare "blank canvas" opportunity for ambitious investors and developers.


An auction can be closed at any time with the auctioneer permitting for the property (the lot) to be sold prior to the end of the auction. A Legal Pack associated with this particular property is available to view upon request and contains details relevant to the legal documentation enabling all interested parties to make an informed decision prior to bidding. The Legal Pack will also outline the buyers’ obligations and sellers’ commitments. It is strongly advised that you seek the counsel of a solicitor prior to proceeding with any property and/or Land Title purchase. Auctioneers Additional Comments In order to secure the property and ensure commitment from the seller, upon exchange of contracts the successful bidder will be expected to pay a non-refundable deposit equivalent to 5% of the purchase price of the property. The deposit will be a contribution to the purchase price. A nonrefundable reservation fee up to 6% inc VAT (subject to a minimum which could be up to £7,200 inc VAT) is also required to be paid upon agreement of sale. The Reservation Fee is in addition to the agreed purchase price and consideration should be made by the purchaser in relation to any Stamp Duty Land Tax liability associated with overall purchase costs. Both the Marketing Agent and The Auctioneer may believe necessary or beneficial to the customer to pass their details to third party service suppliers, from which a referral fee may be obtained. There is no requirement or indeed obligation to use these recommended suppliers or services.

Details

Storage Room ()

Storage Room ()

Hallway ()

Dining Room (11' 5" x 9' 5" (3.47m x 2.86m))

Kitchen ()

Reception Room (11' 9" x 9' 2" (3.59m x 2.80m))

Lounge (14' 1" x 13' 0" (4.28m x 3.96m))

Wc (12' 6" x 9' 8" (3.80m x 2.94m))

Landing ()

Landing ()

  • Strategic High Street Location: Occupies a prominent position on Manchester Road, one of Chorlton’s primary commercial arteries, ensuring high visibility and consistent footfall.
  • Substantial Development Potential: Currently in a "run-down" state, providing a complete "blank canvas" for investors to refurbish, reconfigure, or extend (subject to planning).
  • Versatile Ground Floor: Comprises three distinct shop floor areas, offering the flexibility to create one flagship retail space or multiple smaller units.
  • Mixed-Use Versatility: The layout is perfectly suited for a "live-work" setup or a dual-income stream (commercial ground floor with independent residential units above).
  • Thriving Local Economy: Situated in a high-demand area known for its affluent demographic and popular independent businesses like Unicorn Grocery and Barbakan Delicatessen.
  • Auction Property
Floorplan for Manchester Road, Chorlton Cum Hardy, M21