Snowdon Road, Eccles, M30 - Sold STC Offers Over £500,000 (Freehold)

5 2 3

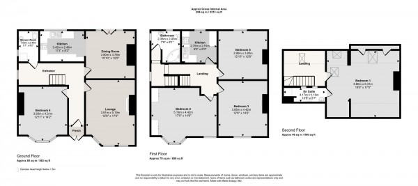
Presenting a truly spacious and impressive period property, this double-fronted semi-detached home offers extensive accommodation spread over three floors, perfectly suited for a large or growing family. Positioned in a highly sought-after area, the property provides excellent proximity to Ellesmere Park, Monton, Eccles, and Salford Royal Hospital.

✨ Substantial Living Space

The ground floor layout is generous, featuring a welcoming and spacious entrance hall. This leads to two large reception rooms at the front: a bright, bay-fronted lounge and a separate, equally spacious bay-fronted sitting room—ideal for flexible family use.

The living space extends to the rear with a dedicated dining room, which seamlessly opens up to the main ground floor kitchen. A valuable addition to the ground floor is a separate shower room, providing convenience and flexibility.

Details

Lounge (17' 1" x 12' 6" (5.20m x 3.80m))

Kitchen (8' 2" x 11' 2" (2.50m x 3.40m))

Dining Room (12' 6" x 12' 10" (3.80m x 3.90m))

Shower Room (8' 2" x 5' 3" (2.50m x 1.60m))

Bedroom 1 (17' 5" x 19' 0" (5.30m x 5.80m))

En-Suite (3' 7" x 10' 2" (1.10m x 3.10m))

Bedroom 2 (14' 5" x 17' 1" (4.40m x 5.20m))

Bedroom 3 (14' 5" x 12' 6" (4.40m x 3.80m))

Bedroom 4 (14' 1" x 12' 10" (4.30m x 3.90m))

Bedroom 5 (12' 6" x 12' 10" (3.80m x 3.90m))

Bathroom (8' 2" x 7' 7" (2.50m x 2.30m))

  • RARE DOUBLE-FRONTED PROPERTY
  • NO CHAIN INVOLVED
  • Four Bedrooms (Three Doubles on First Floor)
  • Two Bay-Fronted Reception Rooms
  • Three Kitchen Areas (Main, First Floor Kitchenette/Second Kitchen, and Outhouse Kitchen)
  • Downstairs Shower Room + First Floor Bathroom + En-Suite
Floorplan for Snowdon Road, Eccles, M30

Please click the button below to view the EPC for for Snowdon Road, Eccles, M30

View EPC