Glenmuir Close, Irlam, M44 - Sold STC £145,000 (Leasehold)

2 1 2

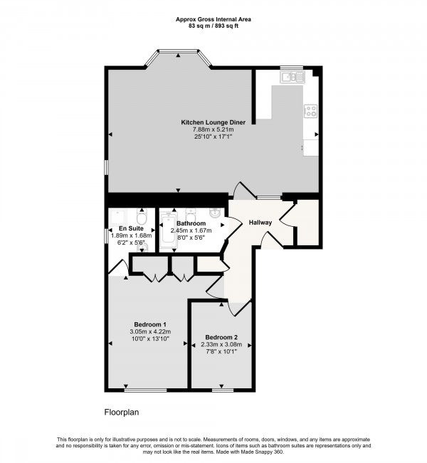
A stylish and contemporary ground floor flat located in a popular Irlam setting, offering well-planned accommodation and convenient access to local amenities. The property features an entrance hall that opens into a large, open-plan kitchen/diner/lounge, providing a bright and versatile space ideal for relaxing and entertaining.

Leading off the hall are two bedrooms, with the main bedroom benefiting from fitted wardrobes and an ensuite shower room, while a modern bathroom with a Crittall-style shower screen serves the remainder of the property. The flat is complemented by one allocated parking space, adding practical convenience for residents.

Situated in Irlam, the property is close to local shops, schools, and amenities, with excellent transport links providing easy access to Manchester City Centre and surrounding areas. This contemporary flat is perfect for professionals, couples, or small families seeking comfortable and convenient living in a sought-after location.

Details

Kitchen Lounge Diner (17' 1" x 25' 10" (5.21m x 7.88m))

Bedroom 1 (13' 10" x 10' 0" (4.22m x 3.05m))

En Suite (5' 6" x 6' 2" (1.68m x 1.89m))

Bedroom 2 (10' 1" x 7' 8" (3.08m x 2.33m))

Bathroom (5' 6" x 8' 0" (1.67m x 2.45m))

Hallway ()

  • Modern ground floor flat
  • Large open-plan kitchen/diner/lounge
  • Modern bathroom with Crittall-style shower screen
  • Convenient location in Irlam close to shops, schools, and amenities
  • Main bedroom with fitted wardrobes and ensuite
Floorplan for Glenmuir Close, Irlam, M44

Please click the button below to view the EPC for for Glenmuir Close, Irlam, M44

View EPC