Park Drive, Eccles, M30 - Sold STC Guide Price £399,995 (Freehold)

4 2 2

A stunning four-bedroom semi-detached family home perfectly positioned in the heart of Monton Village. Situated on the highly sought-after Park Drive, this spacious property offers a blend of modern living and an unbeatable location. Just a short stroll from the vibrant Monton High Street, residents can enjoy an array of independent boutiques, artisan coffee shops, and popular bars and restaurants. For those who love the outdoors, the picturesque Roe Green Loop Line is on your doorstep, providing miles of scenic walking and cycling routes.

The Accommodation

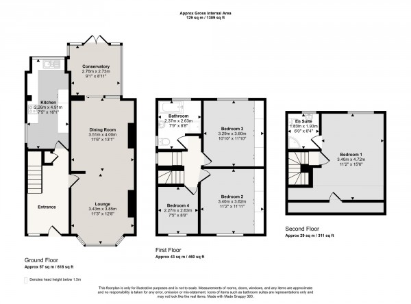
Ground Floor: The property opens into a welcoming entrance hallway. Leading directly off the hall is a modern, fully fitted kitchen complete with an integrated oven and hob. To the front of the home is a spacious, light-filled lounge that flows effortlessly into a dedicated dining area—perfect for family meals and entertaining. This space leads into a bright conservatory, providing additional living area with views and access to the garden.

First Floor: The first floor hosts three well-proportioned bedrooms, two of which benefit from quality fitted wardrobes. Finishing this level is a contemporary family bathroom, thoughtfully designed with a bathtub and a separate walk-in shower cubicle.

Second Floor: The second floor has been dedicated to a generous main bedroom suite. This private retreat offers ample space and the added luxury of a private en-suite shower room.

Exterior & Parking:

The property boasts excellent curb appeal with a driveway providing off-road parking to the front. To the rear, you will find a low-maintenance garden featuring a decking area—ideal for alfresco dining—and a detached garage providing excellent storage or workshop potential.

Location:

Monton is one of Salford’s most desirable "village" locations. Beyond the local amenities, the property is ideally located for easy access into Manchester City Centre, MediaCityUK, and the motorway network, making it a perfect choice for commuting professionals and growing families alike.

Details

Lounge (12' 8" x 11' 3" (3.85m x 3.43m))

Dining Room (13' 1" x 11' 6" (4.00m x 3.51m))

Conservatory (8' 11" x 9' 1" (2.73m x 2.76m))

Kitchen (16' 1" x 7' 5" (4.91m x 2.26m))

Bedroom 1 (15' 6" x 11' 2" (4.72m x 3.40m))

En-Suite (6' 4" x 6' 0" (1.93m x 1.83m))

Bedroom 2 (11' 11" x 11' 2" (3.62m x 3.40m))

Bedroom 3 (11' 10" x 10' 10" (3.60m x 3.29m))

Bedroom 4 (8' 8" x 7' 5" (2.63m x 2.27m))

Bathroom (8' 8" x 7' 9" (2.63m x 2.37m))

  • Prime Monton Location: Walking distance to the High Street and Loop Line.
  • Spacious Living: Four-bedroom semi-detached home over three floors.
  • Master Suite: Large second-floor bedroom with private en-suite.
  • Social Spaces: Open plan lounge/diner plus a bright conservatory.
  • Kitchen: Fully fitted with integrated oven and hob.
  • Family Bathroom: Four-piece suite with a separate shower cubicle.
Floorplan for Park Drive, Eccles, M30

Please click the button below to view the EPC for for Park Drive, Eccles, M30

View EPC