Liverpool Road, 177 Liverpool Road, M44 - For Sale Offers Over £180,000 (Leasehold)

1 4 1

A premier opportunity to acquire a versatile mixed-use property with significant value-add potential, situated in a prominent position on Liverpool Road.

This substantial premises offers a strategic blend of commercial and residential space, making it an ideal prospect for investors, developers, or owner-occupiers seeking a custom project. The ground floor features a spacious and highly adaptable commercial unit, perfectly suited for a variety of retail, office, or service-based ventures.

Complementing the commercial space is a well-proportioned three-bedroom residential apartment on the upper floor. This secondary unit provides excellent potential for high-yield rental income or convenient on-site living for a business owner.

While the property requires a comprehensive program of modernization and refurbishment, it serves as an exceptional "blank canvas." This is a rare chance to capitalize on a property with genuine scale and transform it into a high-standard asset tailored to your specific requirements. Rental Opportunity: Potential income of approximately £350 per week for the entire building, comprising a commercial unit on the ground floor with residential accommodation above.

Property Highlights:

  • Prime Location: High-visibility frontage on a well-connected route in Cadishead.

  • Mixed-Use Versatility: Combines a large commercial footprint with independent residential accommodation.

  • Development Potential: Significant opportunity to build equity through renovation and modernization.

  • Flexible Layout: Accommodates a wide range of business models and living arrangements.


Details

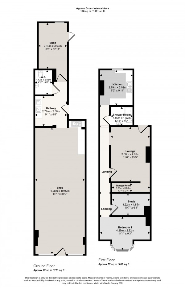
Shop 1 (35' 9" x 14' 1" (10.90m x 4.28m))

Shop 2 (12' 11" x 8' 2" (3.93m x 2.49m))

Lounge (15' 5" x 11' 0" (4.69m x 3.36m))

Kitchen (9' 11" x 9' 2" (3.02m x 2.79m))

Bedroom 1 (9' 3" x 14' 1" (2.82m x 4.29m))

Study (6' 1" x 10' 7" (1.85m x 3.22m))

Shower Room (5' 2" x 5' 11" (1.57m x 1.80m))

  • Mixed-Use Asset: A versatile combination of a substantial ground-floor commercial unit and a self-contained residential apartment.
  • Strategic Investment: An ideal "value-add" project for investors or developers looking to refurbish and capitalize on multiple income streams.
  • Owner-Occupier Appeal: Perfect for business owners seeking a high-street presence with the convenience of on-site living.
  • Expansive Floor Area: A generous and adaptable layout suitable for retail, professional services, or office use.
  • Prominent High Street Position: Situated in the heart of Cadishead on the primary Liverpool Road thoroughfare.
  • Thriving Local Area: Surrounded by a mix of established businesses and residential neighborhoods, providing a built-in customer base.
Floorplan for Liverpool Road, 177 Liverpool Road, M44